about
Projects
Jane Approach
Workaround: The Jane Approach
Avery Green
Building Movements
Ethics & Creative Practice
Publications
News
about
Projects
Jane Approach
Workaround: The Jane Approach
Avery Green
Building Movements
Ethics & Creative Practice
Publications
News
transformation
Avery Green
Who is Avery Green?
The TED talk
Naming
Architectural Animality
Deep Site History
Transformation 2015
Avery's Exhibition 2015
Over-The-Top-Terrain
? Pickets
The House that Jane Built
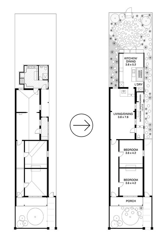
View fullsize
before and after plans
before and after West elevations
Construction Timelapse